El proyecto consiste en una remodelación y a la vez en una ampliación de una vivienda unifamiliar, dicha propiedad se encuentra dentro del club de golf San Carlos. En esencia, el proyecto contempla reubicar algunos espacios como: acceso principal, cocina, sala, estudio y recamara principal. Los espacios que se incorporan son: gimnasio, comedor familiar y terraza.








Ya que el proyecto contempla renovar ciertos espacios así como incorporar otros, se tiene que desarrollar en diferentes fases, siendo la demolición de los espacios que no se van a conservar la primera etapa de la ejecución de esta obra, mientras que la construcción de los nuevos espacios y remodelación serán después.








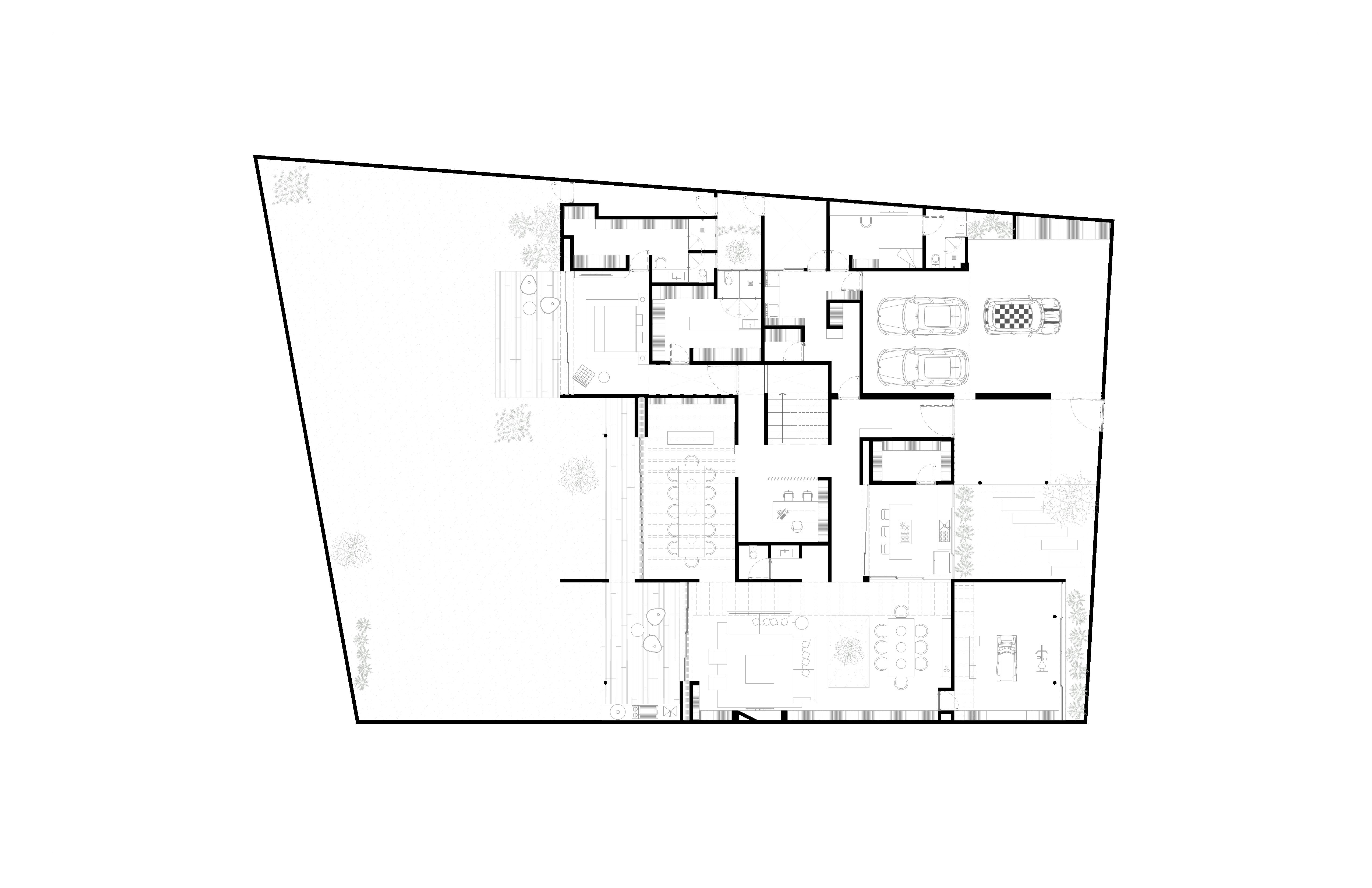
El proyecto toma su nombre a partir del programa arquitectónico y del programa de necesidades de nuestros clientes. Desde los primero bocetos del proyecto, se dibujaron un conjunto de módulos respecto a la función que tenían y la ubicación que preferían los clientes. Sin forzar tanto el esquema, todo quedo resumido en tres bloques donde conviven espacios nuevos y espacios remodelados.








La conjunción de estos tres bloques nos permite tener bien ordenadas las áreas públicas, semipúblicas y privadas de todo el proyecto. Cosa que quisimos llevar más allá de un croquis y que se verá plasmado en la materialidad del proyecto. Tomando un par de ejes compositivos, se proponen dos robustos muros para crear una transición entre espacios. Estos muros serán los únicos con un acabado en piedra que resaltan de todo el proyecto para hacer aún más evidente la transición y los tres bloques.















